Appartement 1 – Begane grond

Zandvoortselaan 70A | € 665.000,- k.k. | ca. 89,5 m² GO | 3 kamers | privé tuin ca. 225,7 m² | energielabel A++ 


Wonen als een huis – uitzonderlijk royale tuin van maar liefst 225 m²

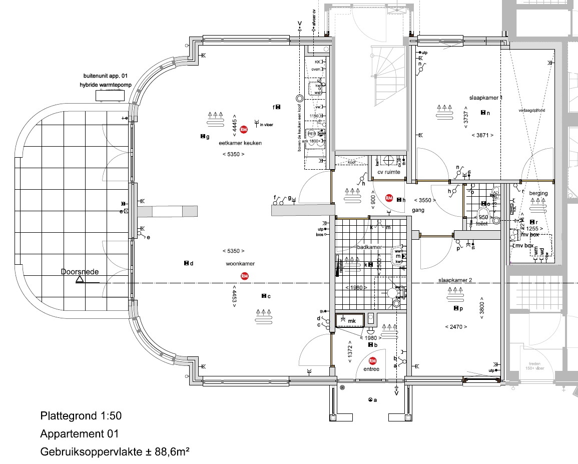
Via de eigen entree aan de Zandvoortselaan betreedt u dit royale en uitstekend ingedeelde driekamerappartement. De woning is volledig gelijkvloers en biedt een comfortabel en overzichtelijk woonprogramma.

De woonkamer vormt het hart van het appartement en kenmerkt zich door de grote raampartijen en openslaande deuren naar de tuin. Hierdoor ontstaat een lichte leefruimte met een sterke verbinding tussen binnen en buiten.

Wat dit appartement écht uniek maakt, is de uitzonderlijk ruime privé tuin van circa 225,7 m². Deze tuin biedt volop mogelijkheden voor meerdere terrassen, groeninrichting en buitenleven op niveau — een zeldzaamheid voor een appartement en eerder vergelijkbaar met een grondgebonden woning.

De bestaande groene erfafscheiding en omliggende volwassen beplanting zorgen voor een beschut en groen karakter, waardoor u hier in alle rust en privacy kunt genieten.

De woning beschikt over twee comfortabele slaapkamers en een volledig afgewerkte badkamer met inloopdouche, wastafelmeubel en hoogwaardig sanitair. Daarnaast is er een separaat toilet.

Praktisch en compleet

Bij dit appartement behoren twee parkeerplaatsen op eigen terrein.

Hoogwaardig afwerkingsniveau

  • Glad gestuukte wanden en plafonds (wit, RAL 9010).
  • Luxe badkamer met inloopdouche en tegelwerk tot plafond.
  • Separaat toilet met fonteintje.
  • Strakke binnendeuren en aftimmeringen.


Duurzaam & energiezuinig

  • Energielabel A++
  • Hybride warmtepompinstallatie
  • Volledig geïsoleerd
  • HR++ glas
  • Vloerverwarming


Keuken naar eigen wens

De keuken is niet inbegrepen in de koopsom. Via Voortman Keukens wordt een complete keuken aangeboden conform de projectbrochure voor € 5.750,- inclusief BTW. Na aankoop wordt u uitgenodigd om de keuken volledig naar eigen wens samen te stellen.

Vraagprijs - € 665.000,- k.k. 

De woning wordt verkocht middels inschrijving, Nadere informatie hierover ontvangt u tijdens de bezichtiging.


Bezichtiging

Bezichtigingen voor dit appartement vinden plaats op 7 en 8 mei 2026, uitsluitend op afspraak. Wij nodigen u graag uit om uw interesse kenbaar te maken en een bezichtiging in te plannen. Plan een bezichtiging.

De Goudsbloem
De Goudsbloem (klik op afbeelding om te vergroten)
Tekening appartement 1
Tekening appartement 1 (klik op afbeelding om te vergroten)
Interieur appartement 1
Interieur appartement 1 (klik op afbeelding om te vergroten)
Tekening Begane Grond
Tekening begane grond (klik op afbeelding om te vergroten)
Verkooptekeningen appartement 1
Verkooptekeningen appartement 1 (klik op afbeelding voor de tekeningen in PDF)