Appartement 3 – 2e verdieping

Zandvoorter Allee 2B | € 340.000,- k.k. | ca. 44,6 m² GO | 2 kamers | tuin ca. 35,0 m² | energielabel A+


Licht appartement met privé tuin en karakteristieke kap

Dit tweekamerappartement op de tweede verdieping onderscheidt zich door zijn lichte en open karakter. Dankzij dakkapellen aan meerdere zijden is de woonkamer met open keuken aangenaam ruim en prettig verlicht.

De slaapkamer is comfortabel van formaat en praktisch ingedeeld. De luxe badkamer is voorzien van een moderne inloopdouche en hoogwaardig sanitair. Daarnaast is er een separaat toilet.

Extra bergruimte bevindt zich in de nok, bereikbaar via een vlizotrap.

Privé tuin

Bijzonder aan dit appartement is de privé tuin van circa 35,0 m² op de begane grond, gelegen aan de Zandvoorter Allee. De tuin wordt omzoomd door een bestaande haag. Twee volwassen bomen zorgen voor privacy en een natuurlijke uitstraling.

Praktisch en compleet

Het appartement beschikt over een eigen parkeerplaats.
De appartementen 2A en 2B en de woning 2C, allen gelegen aan de Zandvoorter Allee, beschikken gezamenlijk over een fietsenberging, waarvan zij mede-eigenaar zijn.

Hoogwaardig afwerkingsniveau

  • Glad gestuukte wanden en plafonds (wit, RAL 9010).
  • Luxe badkamer met inloopdouche, wastafelmeubel, spiegel, handdoekradiator en tegelwerk tot het plafond.
  • Toilet met tegelwerk tot 1200 mm hoog en een wastafel.
  • Strakke binnendeuren en aftimmeringen.

Duurzaam & energiezuinig

  • Energielabel A+
  • Hybride warmtepompinstallatie
  • Volledig geïsoleerde vloer, gevels en plafond
  • HR++ isolatieglas
  • Vloerverwarming (lage temperatuur)


Keuken naar eigen wens

De keuken is niet inbegrepen in de koopsom. Via Voortman Keukens wordt een complete keuken aangeboden conform de projectbrochure voor € 5.750,- inclusief BTW. Na aankoop wordt u uitgenodigd om de keuken volledig naar eigen wens samen te stellen.

Vraagprijs - € 340.000,- k.k.

De woning wordt verkocht middels inschrijving, Nadere informatie hierover ontvangt u tijdens de bezichtiging.


Bezichtiging

Bezichtigingen voor dit appartement vinden plaats op 5 en 6 mei 2026, uitsluitend op afspraak. Wij nodigen u graag uit om uw interesse kenbaar te maken en een bezichtiging in te plannen. Plan een bezichtiging.

De Goudsbloem
De Goudsbloem (klik op afbeelding om te vergroten)
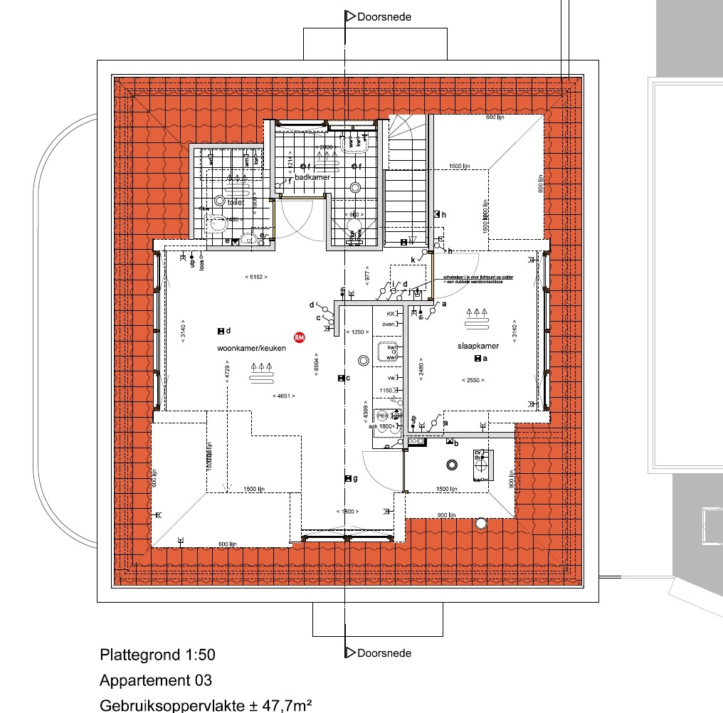
Tekening appartement 3
Tekening appartement 3 (klik op afbeelding om te vergroten)
Appartement 3 buitenruimte
Buitenruimte appartement 3 (klik hier om te vergroten)
Verkooptekeningen appartement 3
Verkooptekeningen appartement 3 (klik op afbeelding voor de tekeningen in PDF)