Woning 2– Zandvoorter Allee

Zandvoorter Allee 2C | € 655.000,- k.k. | ca. 90,9 m² GO | tuin ca. 38,9 m² | energielabel A++


Ruime woning met tuin aan de groene Zandvoorter Allee

Deze ruime woning ligt aan de groene Zandvoorter Allee en biedt veel leefruimte en comfort. Via de entree komt u in de hal met toegang tot een separaat toilet en een luxe badkamer op de begane grond.

De ruime woonkamer met open keuken is licht en open van opzet. Openslaande deuren geven toegang tot de tuin. Op de eerste verdieping bevinden zich twee ruime slaapkamers en een tweede toilet.

Royale tuin

De tuin van circa 38,9 m² wordt omkaderd door een bestaande haag.

Praktisch en compleet

De woning beschikt over een eigen parkeerplaats.
De appartementen 2A en 2B en de woning 2C, allen gelegen aan de Zandvoorter Allee, beschikken gezamenlijk over een fietsenberging, waarvan zij mede-eigenaar zijn.

Hoogwaardig afwerkingsniveau

  • Glad gestuukte wanden en plafonds (wit, RAL 9010).
  • Luxe badkamer met inloopdouche, glazen wand, wastafelmeubel, spiegel, handdoekradiator en tegelwerk tot het plafond.
  • Toilet met tegelwerk tot 1200 mm hoog en een wastafel.
  • Strakke binnendeuren en aftimmeringen.

Duurzaam & energiezuinig

  • Energielabel A++
  • Hybride warmtepompinstallatie
  • Volledig geïsoleerd
  • HR++ isolatieglas
  • Vloerverwarming (lage temperatuur)


Keuken naar eigen wens

De keuken is niet inbegrepen in de koopsom. Via Voortman Keukens wordt een complete keuken aangeboden conform de projectbrochure voor € 5.750,- inclusief BTW. Na aankoop wordt u uitgenodigd om de keuken volledig naar eigen wens samen te stellen.

Vraagprijs - € 655.000,- k.k.

De woning wordt verkocht middels inschrijving, Nadere informatie hierover ontvangt u tijdens de bezichtiging.


Bezichtiging

Bezichtigingen voor dit appartement vinden plaats op 7 en 8 mei 2026, uitsluitend op afspraak. Wij nodigen u graag uit om uw interesse kenbaar te maken en een bezichtiging in te plannen. Plan een bezichtiging.



De Goudsbloem
De Goudsbloem (klik op afbeelding om te vergroten)
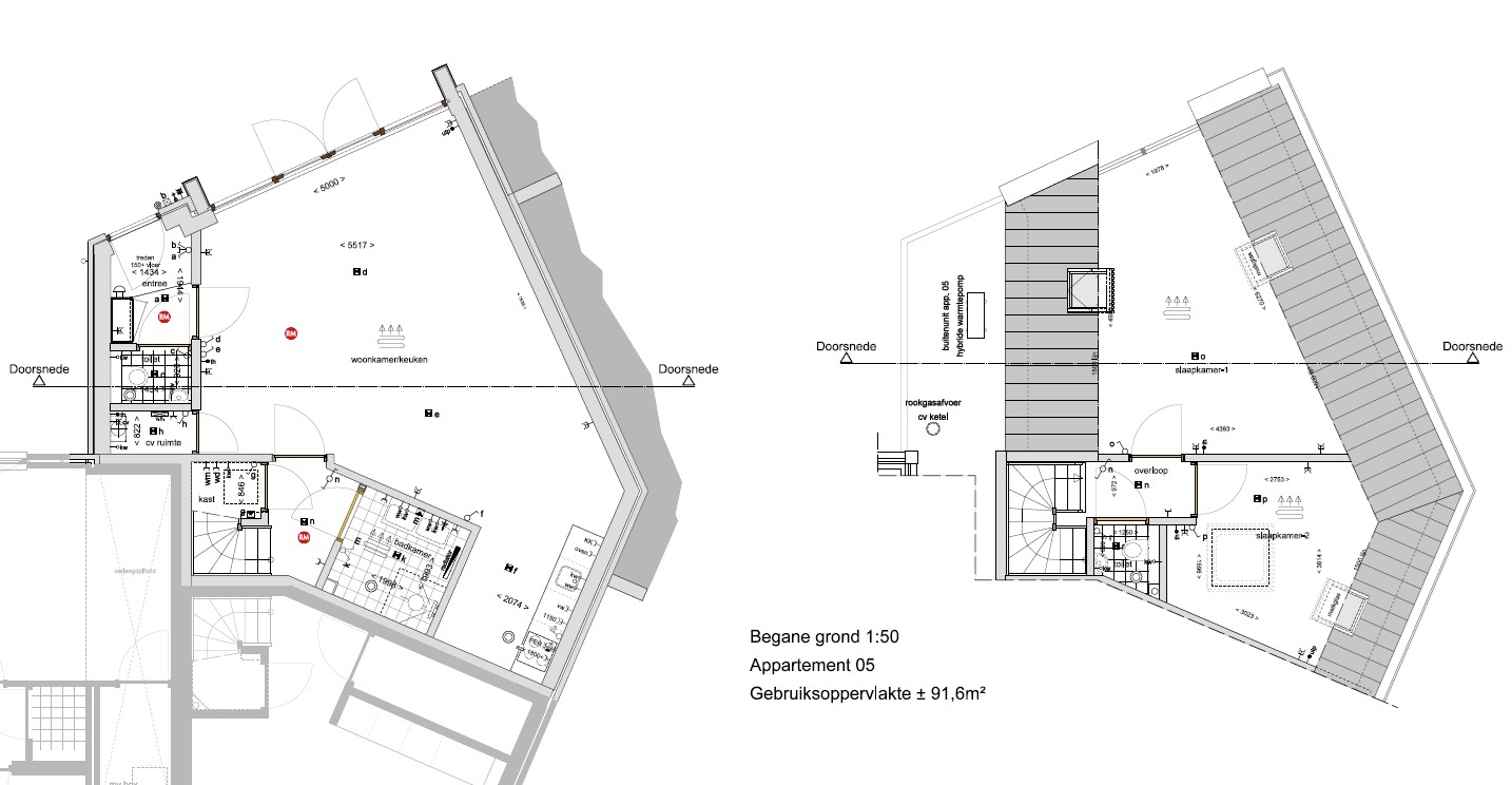
Tekening woning 2
Tekening woning 2, begane grond (klik op afbeelding om te vergroten)
Tekening woning 2, 1ste verdieping
Tekening woning 2, 1ste verdieping (klik hier om te vergroten)
Interieur woning 2
Interieur woning 2 (klik op afbeelding om te vergroten)
Verkooptekeningen woning 2
Verkooptekeningen woning 2 (klik op afbeelding voor de tekeningen in PDF)