Appartement 2 – 1e verdieping

Zandvoorter Allee 2A | € 515.000,- k.k. | ca. 73,4 m² GO | 3 kamers | balkon ca. 10,7 m² | energielabel A++


Licht en comfortabel appartement met balkon aan de Zandvoorter Allee

Via de entree aan de Zandvoorterallee bereikt u dit lichte en praktisch ingedeelde appartement op de eerste verdieping. De hal biedt toegang tot alle vertrekken.

De woonkamer met open keuken vormt het centrale leefgedeelte van het appartement. Grote raampartijen en openslaande deuren zorgen voor veel daglicht en geven toegang tot het balkon, waardoor binnen en buiten op natuurlijke wijze met elkaar verbonden zijn.

Het appartement beschikt over twee comfortabele slaapkamers. De hoofdslaapkamer heeft eveneens directe toegang tot het balkon, wat zorgt voor extra licht en een prettige buitenbeleving.

De luxe badkamer is uitgevoerd met een moderne inloopdouche en hoogwaardig sanitair. Daarnaast is er een separaat toilet.

Balkon

Het balkon van circa 10,7 m² is georiënteerd richting de Zandvoortselaan, die is ingericht als 30-kilometerzone en daardoor rustig en overzichtelijk aanvoelt.

Hoogwaardig afwerkingsniveau

  • Glad gestuukte wanden en plafonds (wit, RAL 9010).
  • Luxe badkamer met inloopdouche, glazen wand, wastafelmeubel, spiegel, handdoekradiator en tegelwerk tot het plafond.
  • Toilet met tegelwerk tot 1200 mm hoog en een wastafel.
  • Strakke binnendeuren en aftimmeringen.

Duurzaam & energiezuinig

  • Energielabel A++
  • Hybride warmtepompinstallatie
  • Volledig geïsoleerde vloer, gevels en plafond
  • HR++ isolatieglas
  • Vloerverwarming (lage temperatuur)

Keuken naar eigen wens

De keuken is niet inbegrepen in de koopsom. Via Voortman Keukens wordt een complete keuken aangeboden conform de projectbrochure voor € 5.750,- inclusief BTW. Na aankoop wordt u uitgenodigd om de keuken volledig naar eigen wens samen te stellen.

Vraagprijs - € 515.000,- k.k.

De woning wordt verkocht middels inschrijving, Nadere informatie hierover ontvangt u tijdens de bezichtiging.


Bezichtiging

Bezichtigingen voor dit appartement vinden plaats op 5 en 6 mei 2026, uitsluitend op afspraak. Wij nodigen u graag uit om uw interesse kenbaar te maken en een bezichtiging in te plannen. Plan een bezichtiging.

De Goudsbloem
De Goudsbloem (klik op afbeelding om te vergroten)
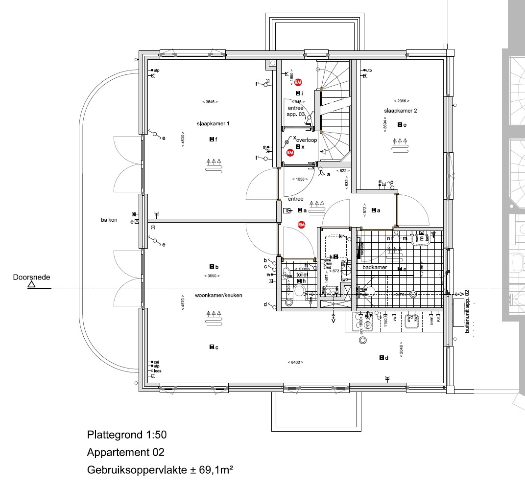
Tekening appartement 2
Tekening appartement 2 (klik op afbeelding om te vergroten)
Tekening 1ste verdieping
Tekening 1ste verdieping (klik op afbeelding om te vergroten)
Appartement 2 buitenruimte
Buitenruimte appartement 2 (klik hier om te vergroten)
Verkooptekeningen appartement 2
Verkooptekeningen appartement 2 (klik op afbeelding voor de tekeningen in PDF)